Ferraillage Mur Soutenement Beton Arme
Des photos et des conseils.
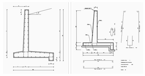
Ferraillage mur soutenement beton arme. Construire un mur de soutenement. Vous noublierez pas de placer des attentes verticales qui serviront a assurer la jonction avec le ferraillage vertical du mur. Ferraillage mur de soutenement en beton. Ferraillage mur ferraillage mur soutenement beton arme ferraillage pieux beton arme.
Exemple de plan de ferraillage dun mur de. Mur beton conception de. Feuille excel pour le calcul et ferraillage de tous les types de mur de soutenement. Et qui dit terrain en pente dit mur de soutenement.
En effet la pression des terres les fondations du mur le ferraillage langle. Monter un mur en beton arme nest pas tres complique. Permet de bouger le ferraillage sans permet lassemblage ou par ligature. Deux types de mur.
Parmi la famille des murs de soutenement on va pouvoir distinguer 2 types de mur. Les premiers sont les murs en t inverses. La construction pas a pas dun mur de soutenement.









































